La maison des Marguerites

Maison unifamiliale neuve de 3 chambres, 2 salles de bain, au plein coeur de Saint-Ferréol-les-Neiges

 
 

Cette magnifique maison sera prête au printemps 2025. Située sur la rue des Marguerites, dans le village de Saint-Ferréol-les-Neiges à seulement 6km du Mont-Sainte-Anne. Vous pourrez vous rendre dans les pistes de ski de vélo ou de fatbike depuis la demeure.

Toutes les commodités sont à une courte distance: Marché Boni-Choix, patinoire, École primaire, CPE, Rang Saint-Julien, Shack à patates, Maison des Jeunes, Brasseurs des Monts, Bar chez Pat.

Prix: 530 000$ + taxes. Incluant le terrain.

Caractéristiques:

  • Terrain de 7 500 pieds carrés

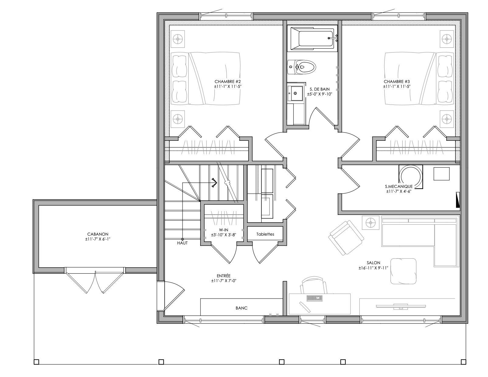
  • 3 chambres

  • 2 salles de bain

  • 2 salons

  • Mudroom 

  • Cabanon

  • Salle de lavage

  • Terrasse couverte et terrasse sans toit

  • Comptoir de cuisine en pierre naturelle

  • Plafond cathédrale

  • Revêtement extérieur en fibrociment

  • Escalier en bois franc

À noter:

  • Garantie de 5 ans limité (GCR)

  • Terrassement non-inclus

 

Plan du rez-de-chaussée

 


Plan de l’étage

 
 

Intéressé? 🤩

Contactez Alex pour en discuter: 418-571-2073

Il est encore possible de faire certains choix de matériaux comme la maison n’est pas encore construite! Faites vite.

Psssst! Nous avons aussi d’autres terrains, dans la rue des Marguerites, dans le quartier Norr et sur la rue Vancouver, prêts pour une construction du maison unifamiliale ou jumelé.